晋城皇城相府城市综合体万达广场项目-山西云泉岩土工程科技股份有限公司
工程案例
联系我们
山西云泉岩土工程科技股份有限公司
地址:阳泉市矿区桃北西街2号中国纳谷主楼1703室
联系人:刘淑芳
手机号码:13453331551
电话号码:0353-2562919
太原理工恒基岩土工程科技有限公司
地址:山西综改示范区太原学府园区东渠路西二巷6号A座22层2204-2211室
联系人:高雪
手机号码:18935123662
电话号码:0351-6018206
工程案例

首页>>工程案例

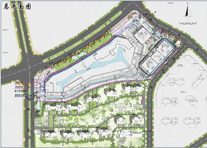
晋城皇城相府城市综合体万达广场项目

http://wzpic.trcipg.top/uploads/image/20230324/ea960e4d590a2cc9c954bc833a47644e.jpg

该项目总建筑面积约30万平方米,是集广场、酒店、酒店式公寓、写字楼与住宅为一体的综合体工程。项目建成后将成为大型城市综合体,推动城市提档升级。


项目效果图:

项目总平面图:

工地实景:


上一篇:没有了 下一篇:“云泉一爆”
扫描二维码